Olen PAP, Walferdange (LUX)

Category :

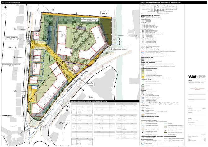
PAP

Project :

Olen PAP, Walferdange (LUX)

Client :

Walferdange Development S.A.

Country :

Luxemburg

Area :

2,23 ha

Planning period :

2018-2025

Uses :

Housing, shops, services

Assignment :

PAP


Share on

project PAP Olen, Walferdange (LUX) client Walferdange Development S.A., Luxembourg (LUX) urban design WW+, Esch-sur-Alzette (LUX) landscape architecture WW+, Esch-sur-Alzette (LUX), Green Surf, Gembloux (BE) engineer SGI Ingénierie S.A., Junglinster (LUX), RSS-Hydro SARL, Kayl (LUX) total area pap 2,23 ha planning phase 2018-2025

 


Contact us !

Similar projects

Perspective

Olen PAP, Walferdange (LUX)

PAP
161205  Axonometrie 1 Wiltz hsa copyright

Ideal & Südhang PAP, Wiltz (LUX)

PAP
LOTS 4-5-6-7 VUE1

Wisegaart PAP, Mertert (LUX)

PAP
Plan de localisation-01

An de Betschend PAP, Sandweiler (LUX)

PAP
PLD 170623 K01d FINAL

A Bëlleg PAP, Dudelange (LUX)

PAP
Diekirch ancienne cité militaire 01

Cité Militaire PAP, Diekirch (LUX)

PAP