Am Maes PAP, Stadtbredimus (L)

Kategorie :

PAP

Projekt :

Am Maes PAP, Stadtbredimus (L)

Auftraggeber :

Lionstone East Sàrl

Land :

Luxemburg

Fläche :

0,97 ha

Planungszeit :

2021-2024

Nutzungen :

Wohnen

Auftrag :

PAP


Teilen über

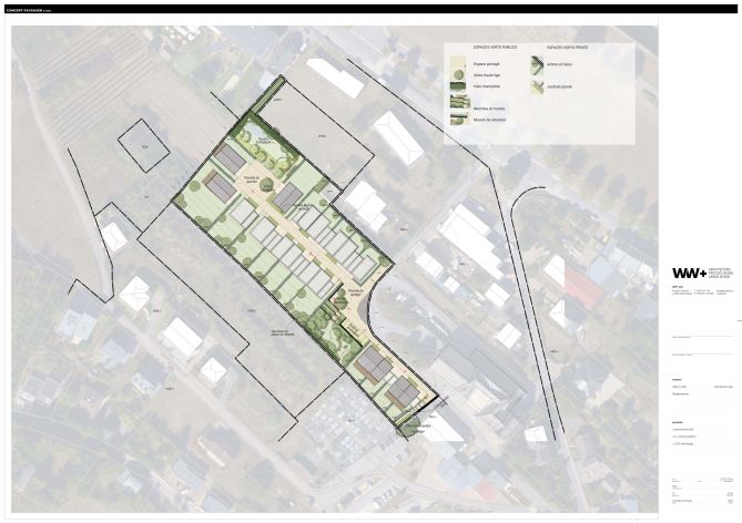
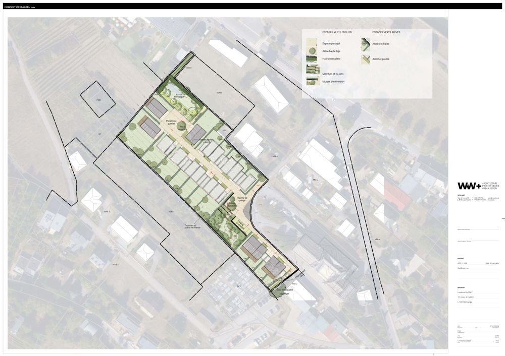
projekt PAP Am Maes, Stadtbredimus (L) auftraggeber Lionstone East Sarl, Luxemburg (L) stadtplanung und landschaftarchitektur WW+, Esch-sur-Alzette (L) ingenieur Schroeder & Associés S.A. Luxembourg (L) gesamtareal pap 0,97 ha planungsphase 2021-2024 
 


Kontakt !

Ähnliche Projekte

Perspective

Olen PAP, Walferdange (L)

PAP
11075 V1 Kazenheck F

Cité Jardin PAP, Niederanven (L)

PAP
161205  Axonometrie 1 Wiltz hsa copyright

Ideal & Südhang PAP, Wiltz (L)

PAP
Image1

Kulturhaus PAP, Schouweiler (L)

PAP
3D2-20-08-26

Belval Sud PAP, Sanem (L)

PAP
LOTS 4-5-6-7 VUE1

Wisegaart PAP, Mertert (L)

PAP