Ribeschpontergriecht PAP, Dudelange (L)

Kategorie :

PAP

Projekt :

Ribeschpontergriecht PAP, Dudelange

Auftraggeber :

Lionstone South Sàrl

Land :

Luxemburg

Fläche :

2,02 ha

Planungszeit :

2022-2025

Nutzungen :

Wohnen, Kindergarten

Auftrag :

PAP


Teilen über

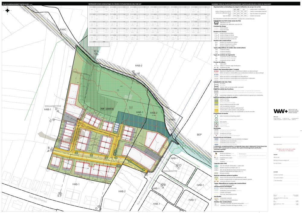
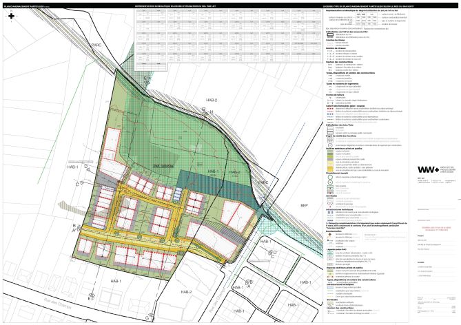
projekt PAP Ribeschpontergriecht, Dudelange (L) auftraggeber Lionstone South Sàrl, Walferdange (L) stadtplanung und landschaftsarchitektur WW+, Esch-sur-Alzette (L) ingenieur Schroeder & Associés, Luxembourg (L) gesamtareal pap 2,02 ha planungsphase 2022-2025

 


Kontakt !

Ähnliche Projekte

Perspective

Olen PAP, Walferdange (L)

PAP
11075 V1 Kazenheck F

Cité Jardin PAP, Niederanven (L)

PAP
161205  Axonometrie 1 Wiltz hsa copyright

Ideal & Südhang PAP, Wiltz (L)

PAP
Image1

Kulturhaus PAP, Schouweiler (L)

PAP
3D2-20-08-26

Belval Sud PAP, Sanem (L)

PAP
LOTS 4-5-6-7 VUE1

Wisegaart PAP, Mertert (L)

PAP