Belval Sud PAP, Sanem (LUX)

Category :

PAP

Project :

Belval Sud PAP

Client :

Agora sàrl et Cie

Country :

Luxemburg

Area :

8,37 ha

Planning period :

2019-2021

Uses :

Housing, shops, offices/services, public facilities

Assignment :

PAP


Share on

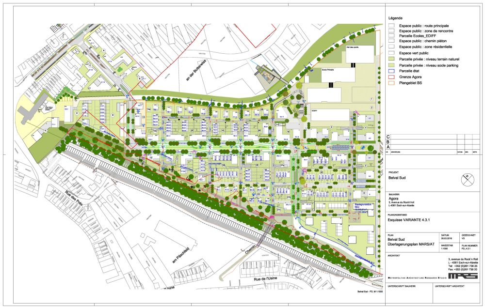
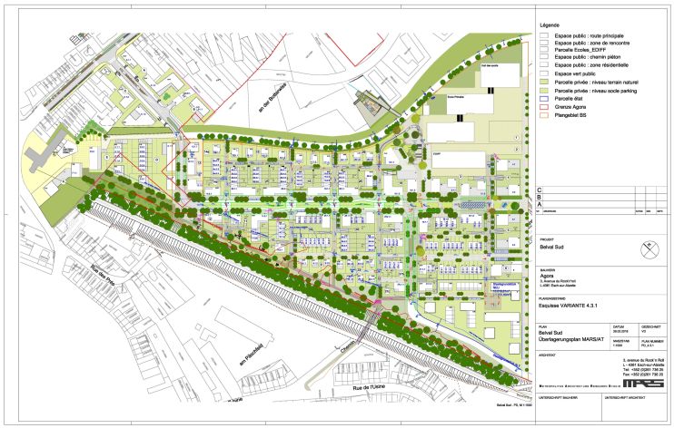
project PAP Belval Sud, Esch-sur-Alzette (LUX) client AGORA Sàrl et Cie, Esch-sur-Alzette (LUX) urban design WW+, Esch-sur-Alzette (LUX) masterplan MARS Group, Belval (LUX) landscape architects Agence Ter Landschaftsarchitekten, Karlsruhe (GER) engineer SGI Ingenierie S.A., Luxembourg (LUX) total area pap 8,37 ha planning phase 2019-2021


Contact us !

Similar projects

Perspective

Olen PAP, Walferdange (LUX)

PAP
11075 V1 Kazenheck F

Cité Jardin PAP, Niederanven (LUX)

PAP
161205  Axonometrie 1 Wiltz hsa copyright

Ideal & Südhang PAP, Wiltz (LUX)

PAP
Image1

Kulturhaus PAP, Schouweiler (LUX)

PAP
3D2-20-08-26

Belval Sud PAP, Sanem (LUX)

PAP
LOTS 4-5-6-7 VUE1

Wisegaart PAP, Mertert (LUX)

PAP