Centre 11a and b Bommert PAP, Leudelange (LUX)

Category :

PAP

Project :

Centre 11a et b Bommert PAP, Leudelange (LUX)

Client :

Lionstone Leudelange Sàrl

Country :

Luxemburg

Area :

6,52 ha

Planning period :

2020-2025

Uses :

Housing, shops

Assignment :

PAP


Share on

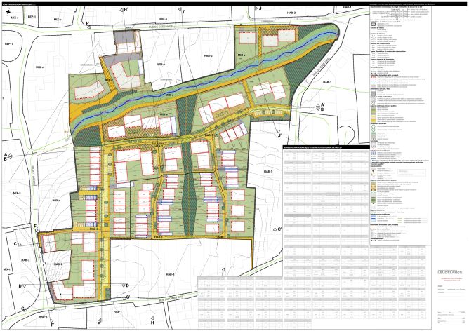
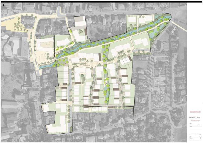
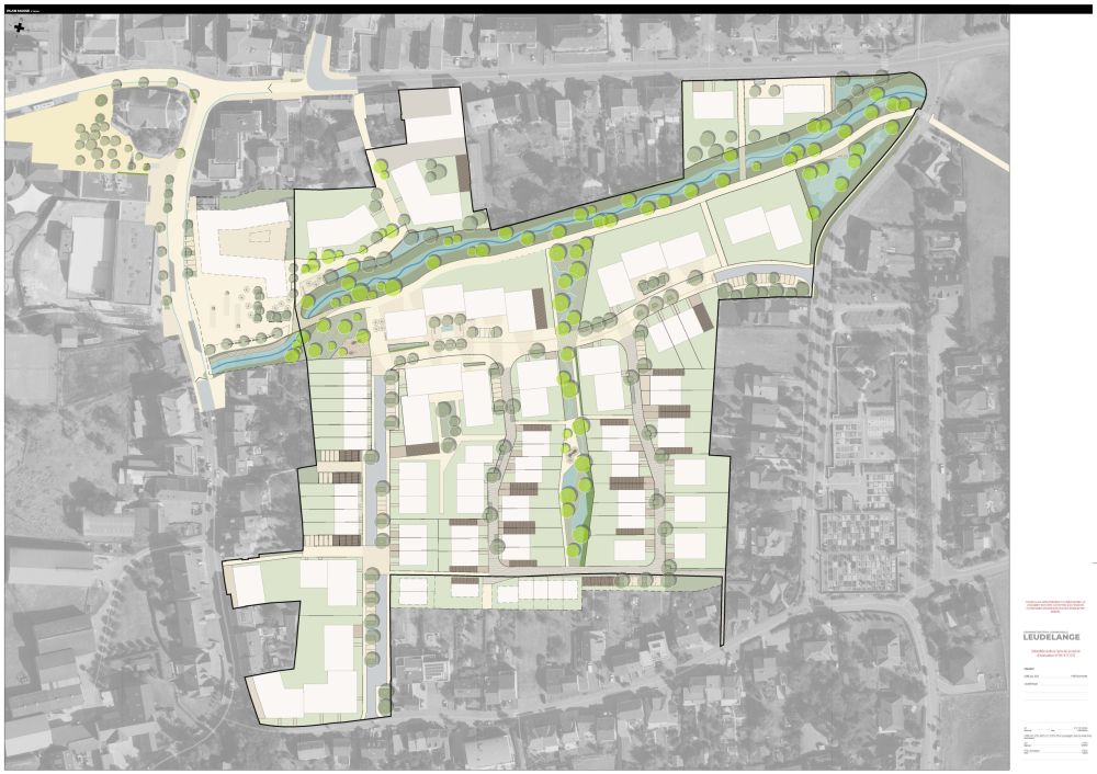
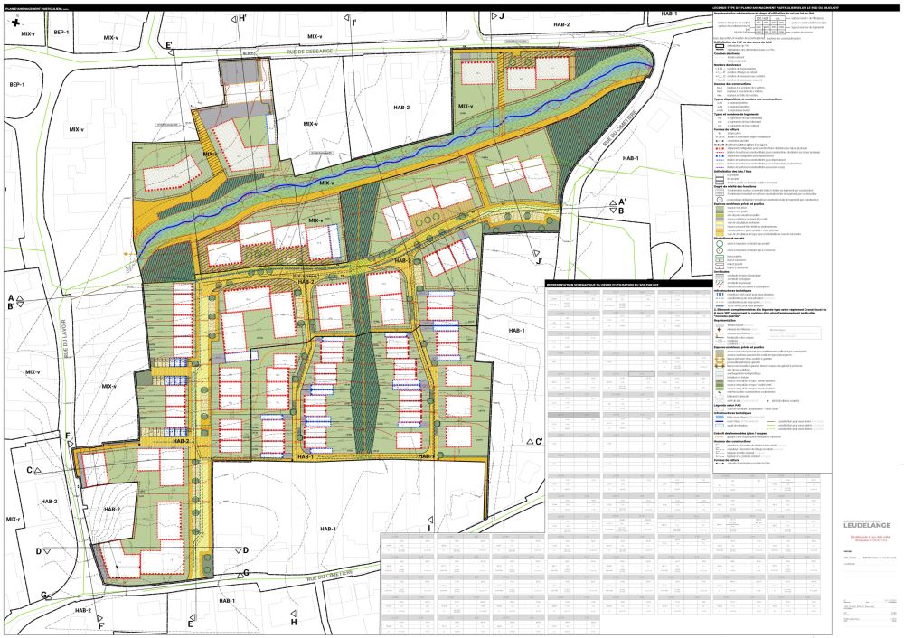
project PAP Centre 11a and b "Bommert", Leudelange (LUX) client Lionstone Leudelange Sàrl, Helmsange (LUX) urban planning WW+, Esch-sur-Alzette (LUX) landscape architecture Ernst&Partner, Trier (GER) engineer Schroeder & Associés S.A., Kockelscheuer (LUX) architectural concept Reiulf Ramstad Arkitekter (NOR) total area pap 6,52 ha planning phase 2020-2025 renderings Reiulf Ramstad Arkitekter

 


Contact us !

Similar projects

Perspective

Olen PAP, Walferdange (LUX)

PAP
161205  Axonometrie 1 Wiltz hsa copyright

Ideal & Südhang PAP, Wiltz (LUX)

PAP
Image1

Kulturhaus PAP, Schouweiler (LUX)

PAP
3D2-20-08-26

Belval Sud PAP, Sanem (LUX)

PAP
LOTS 4-5-6-7 VUE1

Wisegaart PAP, Mertert (LUX)

PAP
231122 Bommert Design Vision PRES final-22

Centre 11a and b Bommert PAP, Leudelange (LUX)

PAP