Routlëns PAP, Esch-sur-Alzette (L)

Category :

PAP

Project :

Routlëns PAP Esch-sur-Alzette (LUX)

Client :

IKO Real Estate

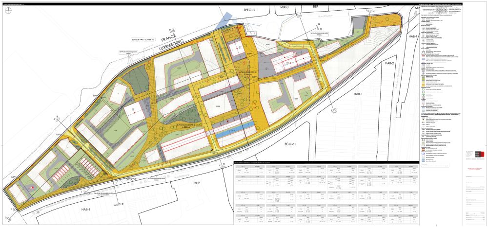
Area :

6,83 ha

Planning period :

2020-2021

Uses :

Housing, shops, services, cultural facilities

Assignment :

PAP


Share on

project PAP Routlëns, Esch-sur-Alzette (LUX) client IKO Real Estate, Howald (LUX) urban design WW+, Esch-sur-Alzette (LUX) masterplan Reichen et Robert & Associées, Paris (FR) landscape architecture Phytolab, Nantes (FR) engineer Schroeder & Associés S.A. Luxembourg (LUX) energie concept IDES Engineering, Steinfort (LUX) total area pap 10,78 ha planning phase 2020-2021 renderings IKO Real Estate, Howald (LUX)


Contact us !

Similar projects

Perspective

Olen PAP, Walferdange (LUX)

PAP
161205  Axonometrie 1 Wiltz hsa copyright

Ideal & Südhang PAP, Wiltz (LUX)

PAP
Image1

Kulturhaus PAP, Schouweiler (LUX)

PAP
3D2-20-08-26

Belval Sud PAP, Sanem (LUX)

PAP
LOTS 4-5-6-7 VUE1

Wisegaart PAP, Mertert (LUX)

PAP
231122 Bommert Design Vision PRES final-22

Centre 11a and b Bommert PAP, Leudelange (LUX)

PAP