Lift Holleschbierg, Hesperange (L)

Kategorie :

Sonderbauten

Projekt :

Neubau eines Stadtaufzugs inkl. Treppenhaus und Passerelle zur barrierefreien Erschließung des Holleschbierg zum Stadtzentrum Hesperange

Auftraggeber :

Administration Communale de Hesperange

Land :

Luxemburg

Fläche :

bgf 546 m²

Realisierung :

02/2022 - 07/2025


Teilen über

projekt Neubau eines Stadtaufzugs inkl. Treppenhaus und asserelle zur barrierefreien Erschließung des Holleschbierg zum Stadtzentrum Hesperange (L), öffentlich WW+, Esch-sur-Alzette (L) / Wasserbillig (L) HOAI LPH 1-9, landschaftsplanung Ernst + Partner Landschaftsarchitekten, Trier (D) tragwerksplanung LSC 360, Contern (L) haustechnik Jean Schmit Engineering, Luxembourg (L) lichtplanung Andres+Partner, Hamburg (D), bgf  546 m² nf 47 m² ngf 468 m² bri 3.182 m³ bauwerkskosten netto 5.607.000 €  planung 08/2018 - 05/2022 realisierung 02/2022 - 07/2025 fotos Linda Blatzek

 

 

 

Architektur

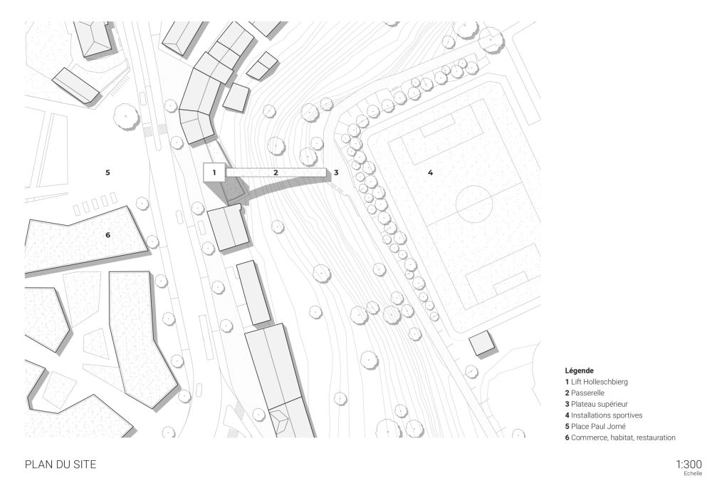
Die neue Liftstruktur bildet einen wichtigen Knotenpunkt zwischen der zukünftig neugestalteten Place Pol Jomé auf der gegenüberliegenden Straßenseite, und dem Plateau Holleschbierg. Sie schafft eine öffentliche, barrierefreie und direkte Verbindung zwischen dem Ortskern und den Sportinfrastrukturen der Gemeinde und vereinfacht den Zugang insbesondere für Fußgänger und Fahrradfahrer

 

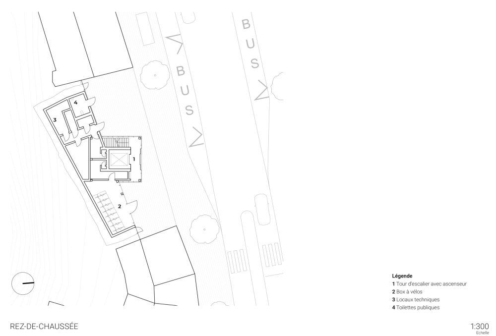
Im unteren Bereich an der Route de Thionville wurde ein einladender Vorplatz mit Restaurant-Terrasse und neuem Stadtmobiliar vorgesehen, der zum Verweilen einlädt. Ein eingeschossiges Sockelgeschoss, welches sich rückseitig an den aufragenden Felsen anlehnt, beherbergt sowohl die Technikräume zum Betrieb des Aufzugs, als auch eine Fahrradbox („mBox“) und eine öffentliche Toilette und vervollständigt somit die Gestaltung des Vorplatzes.

 

Von diesem Sockelgeschoss aus erhebt sich auf einer Grundfläche von ca. 7x8 Meter der 35 Meter hohe Turm, der eine Treppenstruktur sowie die Aufzugsanlage umfasst. Um die Stahlbetonkonstruktion des inneren Kerns herum erstreckt sich eine perforierte Metallfassade aus einzelnen Blech-Rauten. Die sich zum oberen Ende des Turms hin verjüngenden Bleche ergeben ein Bild, das an einen Tannenzapfen erinnert, dessen Schuppen sich kontinuierlich öffnen. Diese Gestaltung lässt sowohl den Einfall von reichlich Tageslicht ins Innere des Turms zu, bietet in den Abendstunden den Vorbeikommenden aber auch den Ausblick auf das Lichtspiel des Turms, der mit seiner Beleuchtung von innen zu glühen scheint. Beim Aufstieg zu Fuß bietet die sich öffnende Fassade den Besuchern immer wieder wechselnde Ausblicke auf die Stadt, die Burg und die Kirche, sowie den angrenzenden Wald.

 

Auf der obersten Etage angekommen, gibt schließlich ein Aussichtspunkt freie Sicht auf den „Hesperpark“, den neuen Place Pol Jomé und die weitere Umgebung der Stadt. Ein hinter der Fassade liegendes Gitternetz und ein zusätzliches Geländer bieten hierbei sowohl Vogelschutz, als auch Sicherheit für die Besucher. Die Liftkabine mit sich gegenüberliegendem Ein- und Ausgang garantiert sowohl für Fußgänger als auch für Fahrradfahrer ein bequemes Vorankommen. Der Aufzug kann bis zu drei Radfahrer und 7 Fußgänger oder 24 Fußgänger gleichzeitig transportieren. Die 28 Meter Höhenunterschied zwischen den Stadtteilen werden in rund 30 Sekunden überwunden.

 

Am Ausgang auf der oberen Ebene des Turms überqueren die Passanten eine 38 Meter lange Fußgängerbrücke über die Baumkronen hinweg hin zu einem Ankunftsplateau im Grünen. Die Brücke wurde als eine Einfeld-Stahl-Konstruktion in einem Stück zwischen Turm und Berg eingehängt und ist ebenso mit einer perforierten Metallfassade umhüllt. In diesem Bereich bleibt die Fassade durchgängig, um die darunterliegende Grünzone und die angrenzende Wohnbebauung zu schützen.

 

Am oberen Plateau angekommen, schließt sich der neu gestaltete Fußweg des Holleschbierg an und führt die Besucher direkt zu den Sportanlagen. Die Neigung dieses Weges verläuft so, dass der Zugang zum Sportzentrum überwiegend barrierefrei gewährleistet ist. Jegliche Eingriffe im Bereich des Weges erfolgten im Interesse der Aufwertung der Ist-Situation und in Respekt mit der Natur.

 


Kontakt !

Ähnliche Projekte

Place Martyrs Web-WWplus

Parking des Martyrs, Luxemburg (L)

Sonderbauten
View from Route de Thionville on lift structure 2

Lift Holleschbierg, Hesperange (L)

Sonderbauten
Ariston Web-WWplus

Ariston, Esch-sur-Alzette (L)

Sonderbauten
Feuerwehrhaus Alzey Ext

Feuerwehrhaus, Alzey (D)

Sonderbauten
Freilichtbühne Berlin Ext

Freilichtbühne 'Gärten der Welt' Berlin (D)

Sonderbauten
fueurwehrhaus Ingelheim Ext

Feuerwehrhaus Ingelheim am Rhein (D)

Sonderbauten